联系人:王经理
手机:18738599917(微信同号)
电话:0373-8955667
邮箱:hnysqzsb@126.com
地址:河南省长垣县起重工业园区
【联系电话】18790530797
20/5吨电动葫芦双梁桥式起重机是指起重量为20/5吨,以电动葫芦作为起升机构的双梁桥式起重机,该型双梁行车俗称葫芦双,小编为大家介绍下20/5吨葫芦双桥式起重机技术参数。
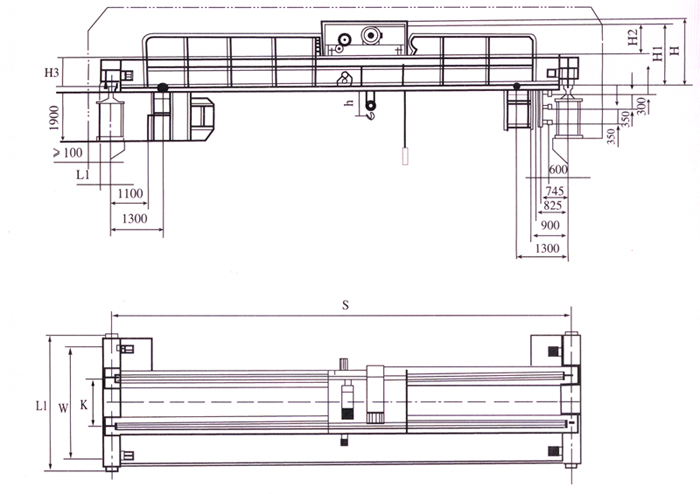
电动葫芦双梁桥式起重机结构图:

20/5吨电动葫芦双梁桥式起重机技术参数
起重量 | T | 20/5 | ||||||||||||
跨度 | m | 10.5 | 13.5 | 16.5 | 19.5 | 22.5 | ||||||||
提升 | 6;8;9;12 | |||||||||||||
高度电源 | 三相交流380V 50HZ | |||||||||||||
大车运行机构 | 地面 | 速度 | m/min | 28.72 | ||||||||||
电动机 | 型号 | YSE90L-4D | ||||||||||||
功率 | kw | 2*1.5 | 4*1.5 | |||||||||||
操纵室 | 速度 | m/min | 40 | |||||||||||
电动机 | 型号 | YSE90L-4D | ||||||||||||
功率 | kw | 2*1.5 | 4*1.5 | |||||||||||
小车 | 葫芦型号 | m/min | 6 | 6 | ||||||||||
起升速度 | 3.5/8 | |||||||||||||
运行速度 | 17 | |||||||||||||
车轮直径 | mm | 300 | ||||||||||||
轨道面宽 | 51-70 | |||||||||||||
最大轮压 | KN | 13655 | 14427 | 15355 | 16044 | 17003 | ||||||||
总重量 | T | 8.4 | 10.6 | 14.2 | 16.8 | 20.9 | ||||||||
主要尺寸 | ||||||||||||||
K | 1500(H-6m,9m);1800(H-6m,9m) | |||||||||||||
W | 3000(h-6m,9m);3500(H-12m) | |||||||||||||
L | 3550(H-6m,9m);4050(H-12m) | |||||||||||||
L1 | 141 | |||||||||||||
H | 2157 | 2304 | 2408 | 2508 | 2658 | |||||||||
H1 | 1917 | 2067 | 2171 | 2271 | 2421 | |||||||||
H2 | ||||||||||||||
H3 | 989 | 1139 | 1243 | 1343 | 1493 | |||||||||